- NEW
- 戸建分譲
- 販売中
スマート・ワン シティ恋ヶ窪2期
★全棟 全館空調搭載住宅★
“エアコンの設置は必要ありません”
広々とした敷地面積35坪以上×長期優良住宅◎3棟を分譲中!駐車スペース2台分(車種制限有)。
“エアコンの設置は必要ありません”
広々とした敷地面積35坪以上×長期優良住宅◎3棟を分譲中!駐車スペース2台分(車種制限有)。
・・桧家住宅がお届け!幸せな住まいのポイント!・・
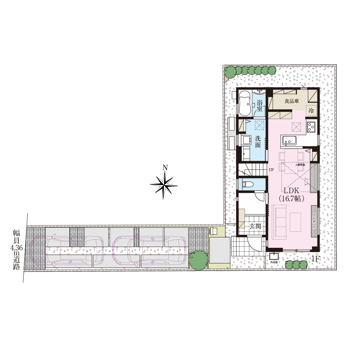
□LDKは全棟16帖超!3面採光の明るく広々とした住空間。
□食器洗乾燥機・浄水器・浴室乾燥機などの室内設備を標準搭載。
□小屋裏収納やWICなどの豊富な収納!(8・10号棟)
□オール電化×太陽光発電で省エネな暮らし(9号棟)
□駐車スペース2台分(車種制限有)。
□教育施設・生活施設が徒歩圏内に揃う、利便性の高い立地。
□LDKは全棟16帖超!3面採光の明るく広々とした住空間。
□食器洗乾燥機・浄水器・浴室乾燥機などの室内設備を標準搭載。
□小屋裏収納やWICなどの豊富な収納!(8・10号棟)
□オール電化×太陽光発電で省エネな暮らし(9号棟)
□駐車スペース2台分(車種制限有)。
□教育施設・生活施設が徒歩圏内に揃う、利便性の高い立地。
- 2階建て(アトリエ含む)
- 小屋裏収納付き
- 青空リビング(屋上)付き
- 長期優良住宅
- カースペース2台可
- 角地
- 小学校徒歩10分以内
- スーパー徒歩10分以内
- 2駅利用可
周辺環境・アクセス
ライフインフォメーション
設備仕様
区画図
【全体区画図】

全5棟を分譲中!前面道路の幅員は、西側約4.36m、北側約5.0m。道路との高低差はほとんど無く、お車の出入りもスムーズに行えます。
販売プラン
物件概要
| 所在地 | 東京都国分寺市並木町1-21-85付近 |
|---|---|
| 交通 | 西武国分寺線「恋ヶ窪」駅・「鷹の台」駅 徒歩14分 |
| 価格 | 6,380万円(税込)〜6,780万円(税込) |
| 土地面積 | 118.04㎡(35.70坪)〜122.04㎡(36.91坪) |
| 建物面積 | 90.66㎡(27.42坪)〜96.25㎡(29.11坪) |
| 間取り | 3LDK |
| 建築確認番号 | 第SJK-KX256012620号他 |
| 土地権利 | 所有権 |
| 地目 | 宅地 |
| 現況 | 更地 |
| 用途地域 | 第一種低層住居専用地域 |
| 建ぺい率 | 40% |
| 容積率 | 80% |
| 建物・構造 | 木造(2階建 地上2階建) |
| 総戸数 | 10戸 |
| 販売戸数 | 3戸 |
| 完成 | 2026年6月末予定 |
| 入居予定 | 2026年7月中旬予定 |
| 接道状況 | 西側約4.36m、北側約5.0m |
| 設備 | 東京電力、公営水道、公共下水、東京ガス、オール電化(9号棟) |
| 取引態様 | 売主 |
| 都市計画 | 市街化区域 |
| 私道・その他共有持分 | |
| 備考・制限等 | 〇22条区域・第一種高度地区〇敷地の一部に電柱及び支柱、支線が入る場合があります。〇電波障害によるケーブルTV、共聴アンテナのお申込みはお客様の負担となります。〇図面と現況が異なる場合は現況を優先と致します。 |
| お問い合わせ先 |
|
最終更新日:2026.03.23次回更新予定日:2026.03.30


































































