子育てを見据えた北欧風バルコニーレスハウス

T様邸
- 家族構成
- 2名(ご夫婦)
- 延床面積
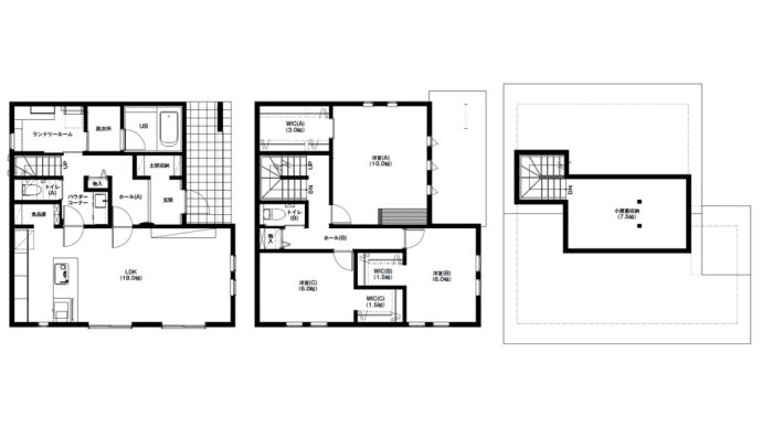
- 117.58㎡(35.50坪)
- 間取り
- 3LDK+小屋裏収納


所有の土地を活かした家づくり
T様が「家を建てよう」と思われたのは、今から2年前のこと。所有されていた土地の活用がきっかけとなり、マイホーム計画がスタートしました。それまではアパート暮らしをされていたT様。夏の暑さと冬の寒さに悩まされることが多く、1年を通して快適に過ごせる住まいを求めておられました。
そんなT様が桧家住宅を選ばれた決め手はズバリ全館空調システム「Z空調」。住まいのどこにいても快適な温度で過ごせる環境を最も重視されました。
以前のアパート暮らしでは、季節による温度変化に苦労されていましたが、新居では夏と冬の快適さが格段に向上。また、一戸建てならではの広さも大きな魅力とのことです。
「Z空調」については「暑さ、寒さで不快になることがなくなりました」と、力強いお言葉をいただきました。季節を問わず心地よい室温が保たれることで、T様の日々の暮らしの質は大きく向上しています。
土地の有効活用という実用的な理由からスタートしたT様の家づくりですが、結果として日々の暮らしの質を大きく向上させる住まいが完成したようです。
これからの暮らしについては「子育てしやすい家」というシンプルながらも深い願いを教えてくださいました。赤ちゃんの誕生を控えたご夫婦の笑顔が、この家での幸せな未来を予感させます。






