- NEW
- 戸建分譲
- 販売中
スマート・ワンシティ寒川町倉見【全7棟】
◆JR東海道新幹線の新駅誘致予定 JR相模線「倉見」駅まで徒歩5分◆
スーパー・コンビニ・ドラッグストアが徒歩8分圏内に揃う、買い物に便利な住環境。
小学校まで徒歩7分で、子育て世帯にもおすすめのロケーションです。
スーパー・コンビニ・ドラッグストアが徒歩8分圏内に揃う、買い物に便利な住環境。
小学校まで徒歩7分で、子育て世帯にもおすすめのロケーションです。
■□ヒノキヤの全館空調「Z空調」の魅力!□■
・家中くまなく快適な温度に安定して保つ!
・365日24時間つけていても、電気代は驚きの低コスト!
・花粉やホコリの侵入を防ぎ、新鮮でクリーンな空気を室内に届ける!
・・桧家住宅がお届け!幸せな住まいのポイント!・・
□JR相模線「倉見」駅まで徒歩5分で通勤・通学に便利な立地。
□ご家族との団らんを育むリビング階段と対面式キッチンを採用。
□SICやWIC・固定階段付小屋裏収納など豊富な収納が魅力。
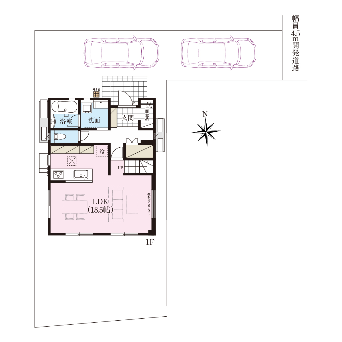
□全棟駐車スペース2台分を確保(車種制限有)。
□1・6・7・9・10号棟は、おひさまエコキュート搭載。
・家中くまなく快適な温度に安定して保つ!
・365日24時間つけていても、電気代は驚きの低コスト!
・花粉やホコリの侵入を防ぎ、新鮮でクリーンな空気を室内に届ける!
・・桧家住宅がお届け!幸せな住まいのポイント!・・
□JR相模線「倉見」駅まで徒歩5分で通勤・通学に便利な立地。
□ご家族との団らんを育むリビング階段と対面式キッチンを採用。
□SICやWIC・固定階段付小屋裏収納など豊富な収納が魅力。
□全棟駐車スペース2台分を確保(車種制限有)。
□1・6・7・9・10号棟は、おひさまエコキュート搭載。
- 2階建て(アトリエ含む)
- 小屋裏収納付き
- 青空リビング(屋上)付き
- 長期優良住宅
- カースペース2台可
- 駅徒歩10分以内
- 小学校徒歩10分以内
- スーパー徒歩10分以内
周辺環境・アクセス
ライフインフォメーション
設備仕様
区画図

販売プラン
物件概要
| 所在地 | 神奈川県高座郡寒川町倉見1027付近 |
|---|---|
| 交通 | JR相模線「倉見」駅 徒歩5分 |
| 価格 | 4,280万円(税込)〜4,410万円(税込) |
| 土地面積 | 120.14㎡(36.34坪)〜162.18㎡(49.05坪) |
| 建物面積 | 91.90㎡(27.79坪)〜103.31㎡(31.25坪) |
| 間取り | 3LDK+WIC+ロフト+青空リビング〜3LDK+土間収納+WIC+固定階段付小屋裏収納 |
| 建築確認番号 | 第2025確認建築静建住ま08913号 他 |
| 土地権利 | 所有権 |
| 地目 | 宅地 |
| 現況 | 建築中 |
| 用途地域 | 工業地域 |
| 建ぺい率 | 60% |
| 容積率 | 200% |
| 建物・構造 | 木造(2階建 ) |
| 総戸数 | 7戸 |
| 販売戸数 | 4戸 |
| 完成 | 4・9号棟:令和8年3月 1・6・7号棟:令和8年5月 |
| 入居予定 | 相談 |
| 接道状況 | 北側4m公道、4.5m開発道路(公道) |
| 設備 | 東京電力・公営水道・公共下水・オール電化住宅 |
| 取引態様 | 売主 |
| 都市計画 | 市街化区域 |
| 私道・その他共有持分 | |
| 備考・制限等 | 道路斜線・隣地斜線・日影規制・第4種高度地区・景観法。敷地の一部に電柱及び支柱、支線が入る場合があります。電波障害によるケーブルTV、共聴アンテナのお申込みはお客様の負担となります。図面と現況が異なる場合は現況を優先と致します。 |
| お問い合わせ先 |
|
最終更新日:2026.02.14次回更新予定日:2026.02.21



























































