- NEW
- 戸建分譲
- 販売中
スマート・ワン シティ諏訪市高島3丁目5号棟
自然と都市が調和する諏訪の高台に、個性際立つ三邸が誕生。桧家住宅の確かな品質と先進の省エネ技術が融合し、四季の移ろいを感じながら家族のきずなを育む住まい。プライバシーを確保しつつ開放的な空間設計で、諏訪湖の眺望と豊かな自然を日常に取り込む、長く愛せる邸宅です。
教育施設や公園が身近にあり、生活利便施設も充実した住環境!
- 2階建て(アトリエ含む)
- カースペース2台可
- 整形地
- 公園徒歩10分以内
周辺環境・アクセス
ライフインフォメーション
設備仕様
区画図

販売プラン
物件概要
| 所在地 | 諏訪市高島三丁目1381番11 |
|---|---|
| 交通 | JR中央本線「上諏訪」駅利用 |
| 価格 | 4,400万円(税込) |
| 土地面積 | 257.00㎡(77.74坪) |
| 建物面積 | 102.68㎡(31.06坪) |
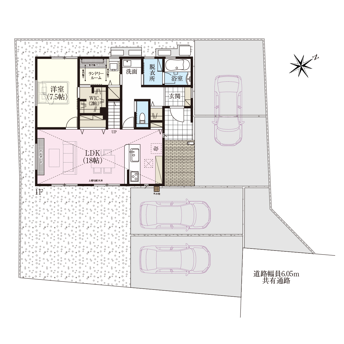
| 間取り | 3LDK |
| 建築確認番号 | 第25NJM-10-01022号 |
| 土地権利 | 所有権 |
| 地目 | 宅地 |
| 現況 | 建築中 |
| 用途地域 | 準工業地域 |
| 建ぺい率 | 60% |
| 容積率 | 200% |
| 建物・構造 | 木造(2階建 地上2階建) |
| 総戸数 | 3戸 |
| 販売戸数 | 3戸 |
| 完成 | 2026.5. |
| 入居予定 | |
| 接道状況 | 東側7m公道、共有通路6.05m |
| 設備 | 公営水道・中部電力・公共下水 |
| 取引態様 | 売主 |
| 都市計画 | 非線引区域 |
| 私道・その他共有持分 | 共有通路6.05m |
| 備考・制限等 | 景観法、都市再生特別措置法 3・4・5号棟の共有通路(幅員6.05m)、1号地と6号地の給排水引き込みの為の地役権を設定しております。 |
| お問い合わせ先 |
|
最終更新日:2026.02.10次回更新予定日:2026.02.17












































